Home
Proiecte
Servicii
Despre
Contact
Inapoi
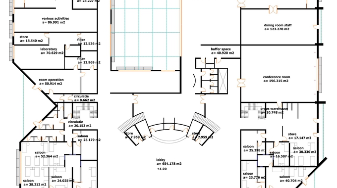
CENTRU DE RECUPERARE - VARIANTA 2
Status
: concurs de solutii
Arhitect
: Laurentiu Palade
Regim de inaltime
: S+P+2E
An
: 2016