Home
Proiecte
Servicii
Despre
Contact
Inapoi
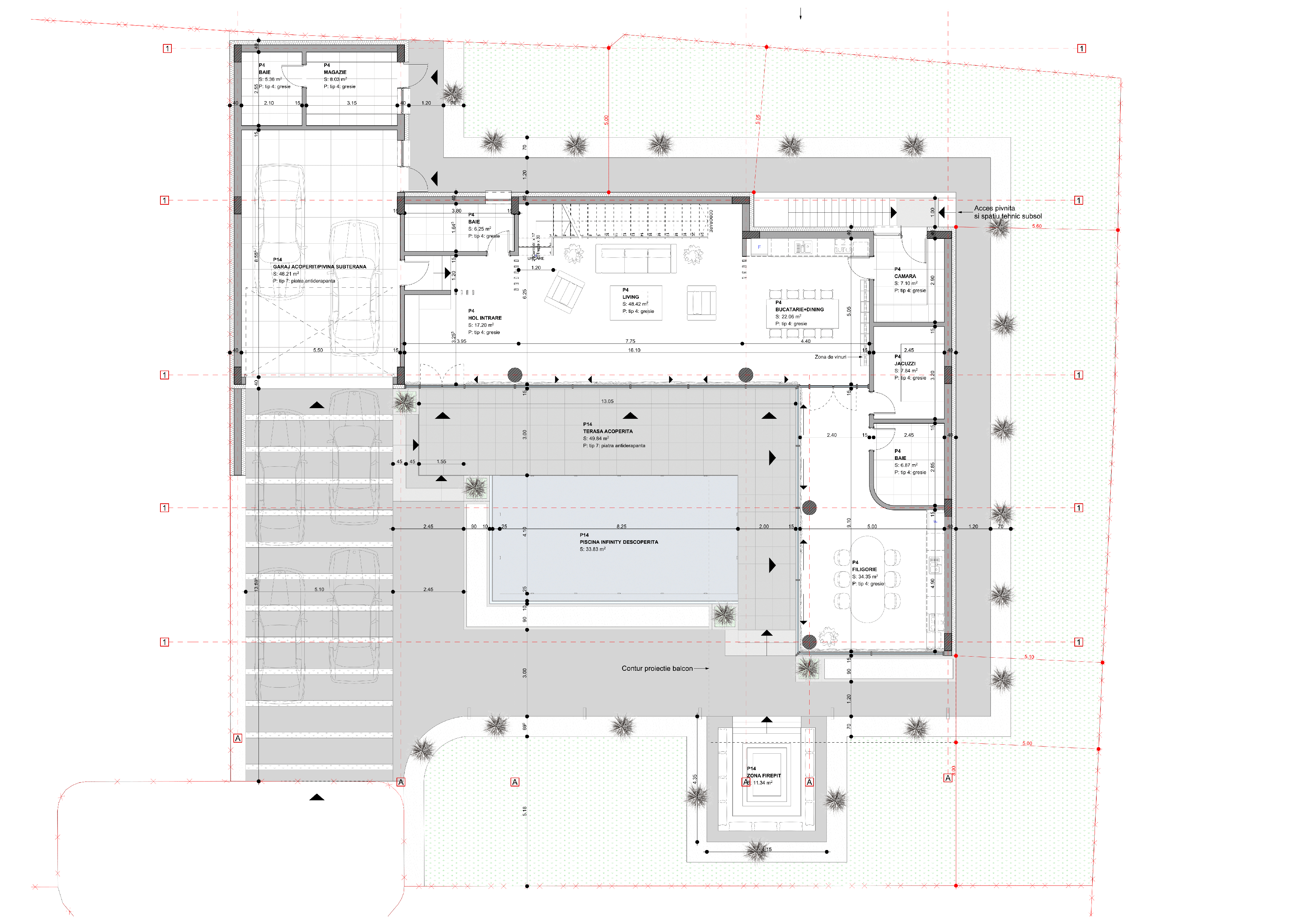
LOCUINTA UNIFAMILIALA SBF
LOCUINTA UNIFAMILIALA SBF
locatie: Sibiu, Romania
Autor: arh. Laurentiu Palade
Anul proiectarii: 2025
R.H.=P+E