Home
Proiecte
Servicii
Despre
Contact
Inapoi
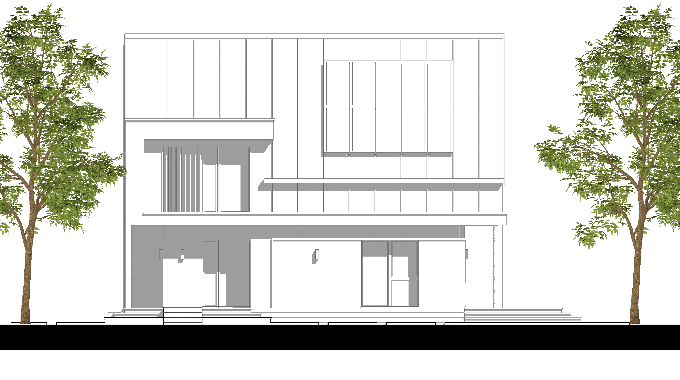
LOCUINTA UNIFAMILIALA LC
AUTOR(I): arh. Laurentiu Palade
INDICATORI: R.H.: P+M / Sd: 155 mp