Home
Proiecte
Servicii
Despre
Contact
Inapoi
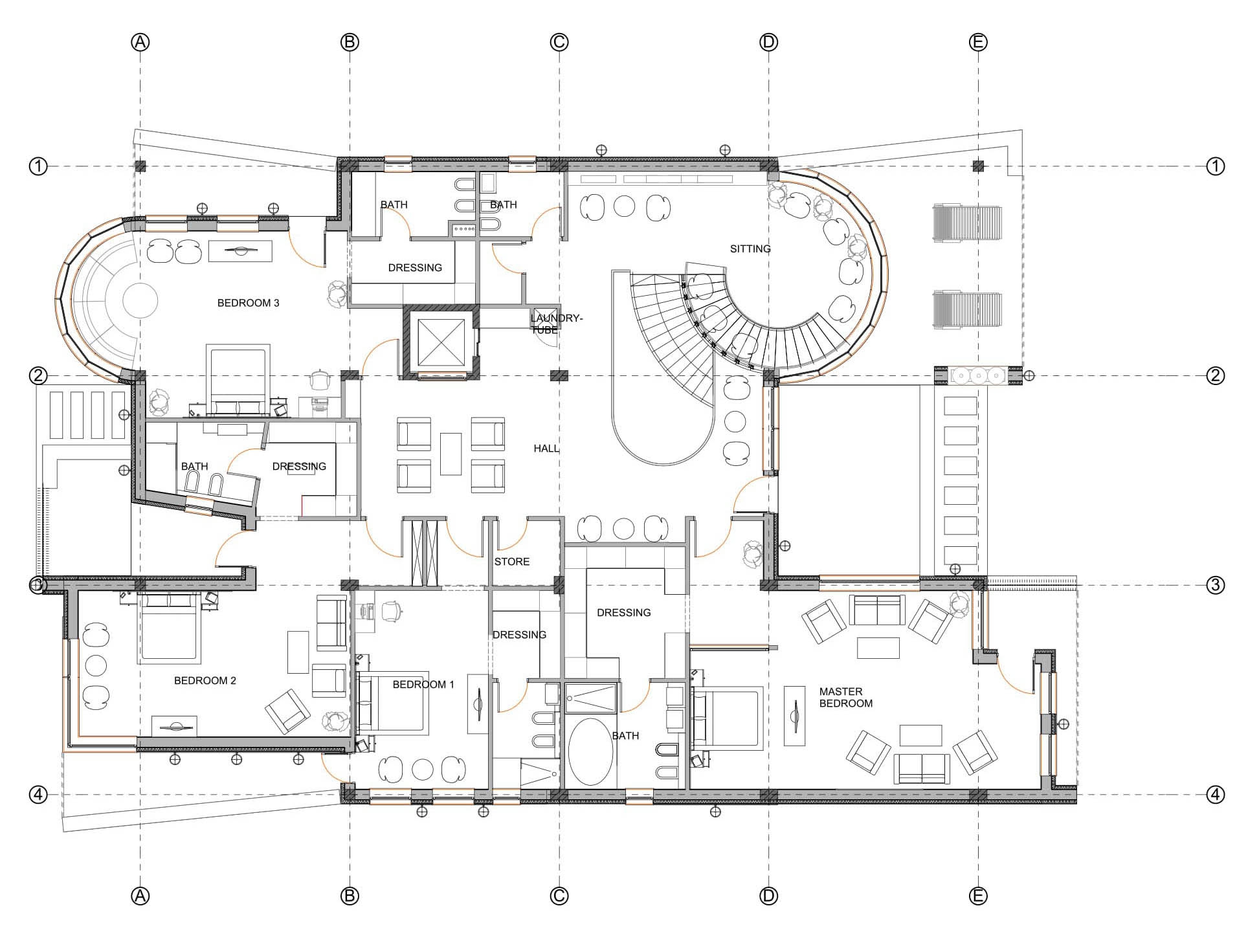
CASA SNAGOV - VARIANTA 11
Status
: construit
Beneficiar
: privat
Arhitec
t
: Laurentiu Palade
Regim de inaltime
: S+P+2E