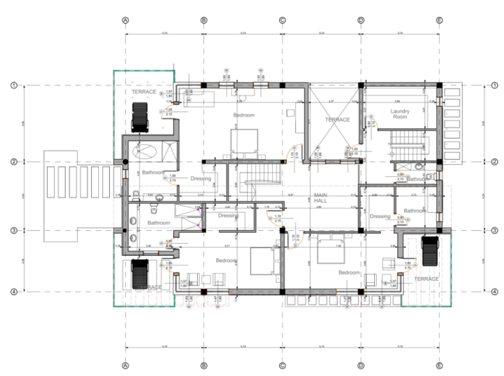
LOCUINTA UNIFAMILIALA P+E+M - BUCURESTI - VARIANTA 2
Status: construit (varianta 2)
Beneficiar: privat
Arhitect: Laurentiu Palade
Regim de inaltime: P+E+M
Status: construit (varianta 2)
Beneficiar: privat
Arhitect: Laurentiu Palade
Regim de inaltime: P+E+M